Biệt thự Eco Palace Bản vẽ biệt thự

Tổng quan biệt thự

Phong cách Indochine chính là sự kết hợp hoàn hảo của nét đẹp văn hoá Đông – Tây, đạt giá trị thẩm mỹ cao, mang đậm tinh hoa về bản sắc và bề dày lịch sử.

Tất cả sản phẩm biệt thự song lập tại Eco Palace Buôn Ma Thuột Đắk Lắk đều sở hữu 2 mặt tiền và hưởng trực diện công viên trung tâm Eco Land.

Phong cách Indochine hay còn gọi là phong cách Đông Dương, là sự kết hợp giữa Tân Cổ Điển Pháp và văn hoá truyền thống Việt Nam. Đến nay vẫn tồn tại nhiều công trình nổi tiếng như Dinh Độc Lập, Nhà hát lớn Hà Nội.

Thông số thiết kế

Diện tích thửa đất0
Tổng diện tích sàn0
Số tầng0
Chiều cao từ vỉa hè lên tầng 10
Chiều cao tầng 10
Chiều cao tầng 20
Chiều cao tầng 30
Chiều cao tầng 40
Chiều cao tầng 50
Tổng chiều cao công trình0
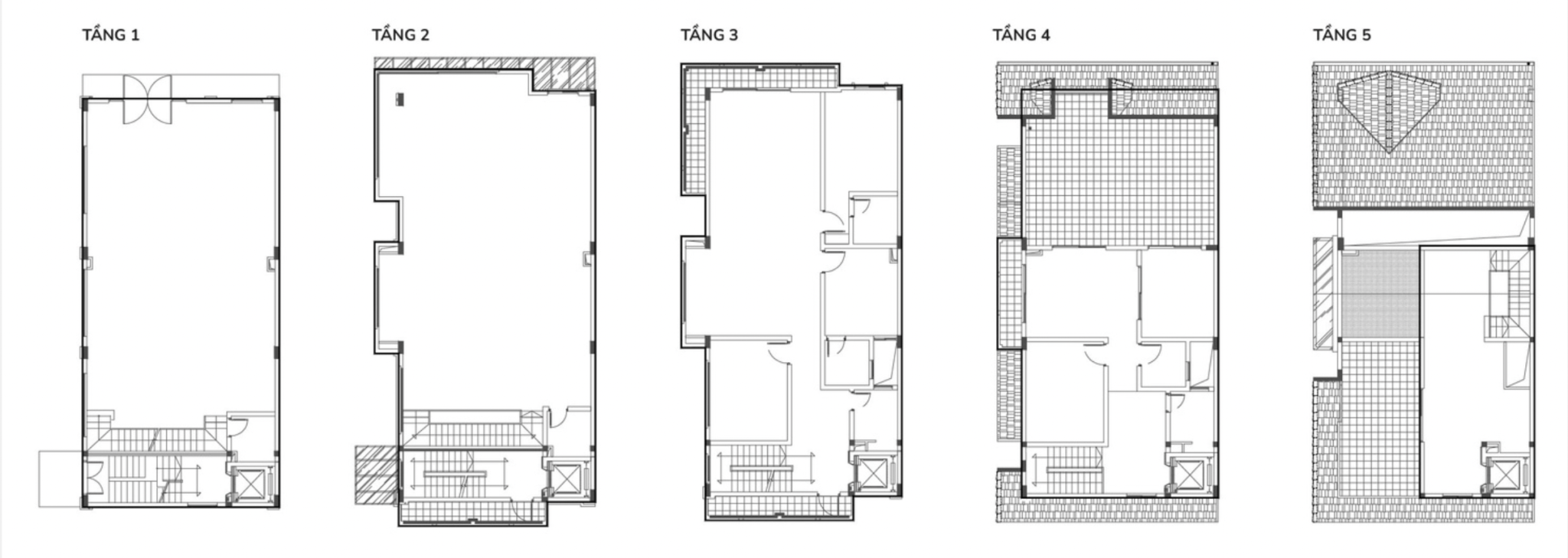
Bảng vẽ

Tổng quan kiến trúc

Indochine Villa tại Eco Palace Đắk Lắk hội tụ tinh hoa văn hóa, độc đáo, ấn tượng và không thể lẫn với bất kỳ phong cách thiết kế nào. Với chất liệu tự nhiên, màu sắc trung tính, nội thất hợp lý, Indochine Villa mang lại sự mộc mạc, tinh tế và cảm giác thoải mái cho gia chủ.

Biệt thự

Vị trí biệt thự trong dự án

Biệt thự nằm ở vị trí trung tâm dự án, được bảo vệ an ninh 24/24, có view trực diện công viên trung tâm cùng hàng loạt tiện ích độc đáo. Đây không chỉ là nơi để ở, mà còn là biểu tượng của phong cách sống thượng lưu, mang đến trải nghiệm nghỉ dưỡng ngay giữa lòng đô thị sôi động.

Biệt thự

Ưu đãi khi booking ngay bây giờ

Biệt thự Eco Palace Đắk Lắk

Lịch Mở Bán 2025

Biệt thự Eco Palace Đắk Lắk

🔥 Chính sách ĐẶC BIỆT dành riêng cho khách hàng tiên phong:

✔️ Booking chỉ từ 50 triệu đồng

✔️ Đặt cọc từ 200 triệu đồng

✔️ Hỗ trợ lãi suất 0% trong 12 tháng

✔️ Miễn phí 100% phí quản lý 12 tháng

✔️ Chiết khấu hấp dẫn tới 8%

✔️ Nhận ngay gói quà tặng nội thất trị giá 100 triệu đồng 🎁

✔️ Session ưu đãi đặc biệt: Tham quan miễn phí dự án cùng chuyên gia